Jonas Lillesø Bentzen

Agger City Centre

A hostel and meeting point in a coastal city in Jutland.

Agger is a very small town that is located along the western danish coast. For the project our class spent three weeks in the town to analyse the area and get ideas as to what would be needed to improve the town.

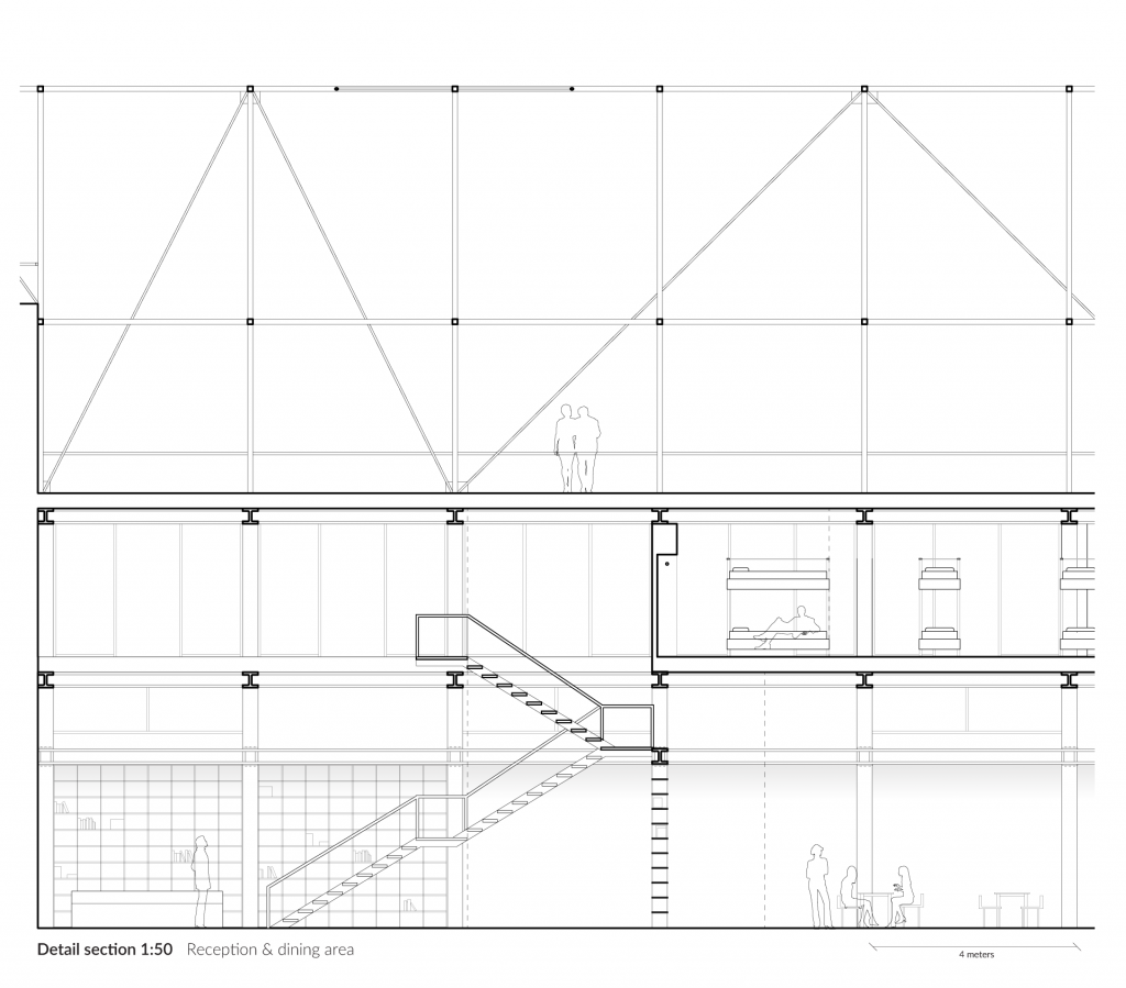
The project aims to establish a natural center at the end of the main road, that is both a communal dining space, a hostel for hikers, ornithologists, tourists and other visitors, workshops and a small shop related to outdoor activities and a viewing platfom from which the ocean and nature is can be experienced.

The building is designed in wood (CLT), steel and glass. The steel construction continues throughout the building and the structure divides and encapsulate the spaces. It is the frame on which the building “hangs”. The ceiling height varies from floor to floor depending on the function of the spaces and creates different experiences. In the hostel, for example, the ceiling i fairly low which makes the space seem intimate and cosy, while the main entrance and dining hall has a high ceiling which creates an open and inviting space.

This website uses cookies. By continuing to use this site, you accept our use of cookies.